The original Standard Bank Building in Adderley Street is an absolute gem, and a well-known site amongst architecture enthusiasts in Cape Town.
In 1879 the City Council offered the Adderley Street site to the Bank, on a ninety-nine year lease at £150 per annum. Charles Freeman designed the Standard Bank building in the neo-classic style that was favoured so widely by the Victorians. Plans were completed in 1881, and a local contractor, T. J. C. Ingelsby, built it for £27000.00. The new premises were opened on the 19th of March 1883.
The two-storied design featured a colonnaded entrance, with a statue of Britannia on the dome. The carved heads over the entrance are of “Ceres”, goddess of agriculture, and of “Poseidon”, god of the sea (and trade). In 1922 two extra floors were added and the dome and statue were replaced after the completion of the addition.
Design Scape were asked to propose how new life could be infused into the Old Lady, with the intention of maximising additional bulk into the existing courtyard space.
Whilst there is no doubt that the Standard Bank Building in Adderley Street is a cogent part of Cape Town’s history, our problem was that in order to give new life to the existing structure, and indeed to insert a new structure into the existing courtyard, the entire building needed a lot of remedial work to be done before we got started.
The problem with remedial work is that it attracts a substantial budget. And the problem with a budget is that it needs to be allocated, by someone, to something. In this case the allocation was to itself… in other words the project started off by shooting itself in the foot. So, before one could even start conceiving any new ideas, one had to spend substantial funds in securing the old function. And that extra cost threatened the feasibility of this project.
In our opinion, what such projects need is for Corporate Responsibility to have separately sourced allocations for remedial work, so that grand old buildings do not have to justify their existence. They have paid themselves off long ago.
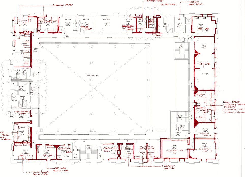
The main design intention was to convert the entire existing building into a modern Art Gallery, serving the population of the CBD. The peripheral zones around the central volumes were suitable as a series of smaller gallery spaces, as well as adapting into staff and public facility spaces. The central volume itself could become an adaptive space that would be flexible in accommodating visiting exhibitions.
Also planned was for a columned support structure to be inserted into the rear volume. This would support a modern addition above the existing building, so that the value of the available bulk could be achieved. All, of course without damaging any of the existing facades.
A number of options were ultimately developed as to what the final design should comprise, and these were assessed against Risk Factors.
Risk Analysis
With older buildings, the more one wants to inject new life, the more risk is attached. Going beyond mere remedial work will attract the attention of various interest groups, like Conservation or Historical organisations. Add to that the very real uncertainty of applying electrical upgrades, and renewing old infrastructure such as water pipes, and uncertainty leads the way forward.
On top of that, the application of modern communication systems, data et al, into what was predominantly a cellular building can cause major headaches. And if one is considering adding a 21st Century structure to carry additional floors, establishing the ground-carrying capacity under the existing building can add even further uncertainty.
This all goes back to the question of funding – one cannot expect to modernize old structures where the refurbishment budget is not seen as distinct from the upgrade costs – the feasibility will be stressed from the start.
Restaurant on the Roof
For more information about our innovative architectural services and on how we can assist you, get in touch with our team of professional architects and designers in Durban and Cape Town.



























